MODEL PLAN

モデルプラン

イッケンハンハウス

イッケンハンハウス

かつて行われた区画整理のあとに取り残され、誰も足を止めることのなかった空き地がありました。間口は僅か4メートル、奥行15メートル。
建物として成立させるにはあまりに細く、駐車場にするには惜しい。いわば「余白」のような土地です。

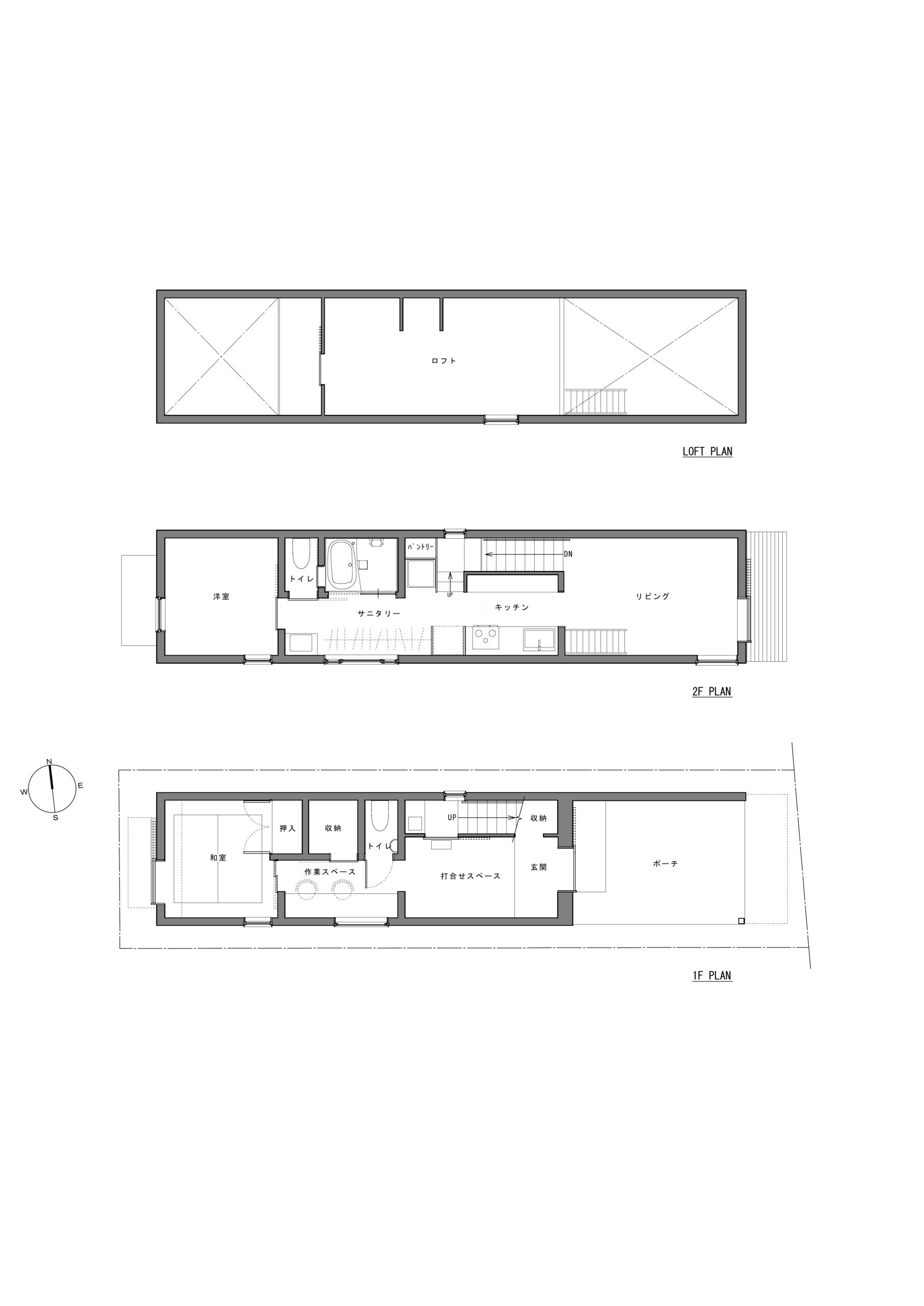
私たちはこの場所に、住まいと仕事場を兼ねた建築物を計画しました。建物の間口はわずか「一間半」、約2.7メートル。
ここに本当に暮らしが成り立つのか、その問いから設計は始まりました。

小さいからこそ、空間の一つひとつに役割を重ねていく。
廊下は単なる移動のための場所ではなく、打合せの場になり、デスクワークの場になり、家事の動線にもなる。
床下や小屋裏といった見過ごされがちな場所も、収納のために使い切りました。
敷地、建物ともに20坪前後。その中に家族の暮らしと小さな仕事場が、無理なく同居しています。

性能面でも妥協はしていません。耐震等級3、断熱等性能等級6を確保し、安心して長く住み続けられる住まいとしました。
構造材や外壁材には国産材、とくに建設地である四国各地の木を用い、職人の手仕事が感じられる佇まいを大切にしています。
それは、地域の林業や産業、そして次の世代へ資源をつないでいく選択でもあります。

「広さ」ではなく、「使い方」で暮らしを豊かにすること。
誰もが通り過ぎていた狭小地にこそ、新しい住まいの可能性がある。
その一つの答えとして、この1間半の家は静かに建っています。土地の条件に向き合い、その場所にしかない暮らしを編み上げました。

建物用途:戸建て住宅(仕事場兼用)

構造  :木造
工事種別:新築

敷地面積:62.70㎡(18.96坪)
延床面積:66.87㎡(20.22坪)
設計:山猫百貨店一級建築士事務所