MODEL PLAN

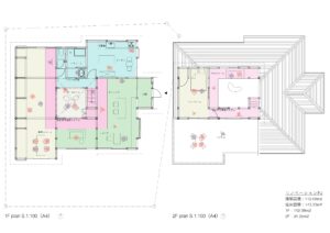
空き家利活用事業による移住体験住宅のリノベーション。
限られた予算を考慮し、グラフィカルな空間操作を主とした。
既存建物がもつ空間的特徴を活かすため「素材の置き換え」をテーマに、
構造体は極力維持しつつ一部の壁面を撤去し、必要最小限の耐震補強を行うことで、
隣接する諸室を視覚的にも連続した大きな一室空間へと再編した。
余分な建築部材を丁寧に剥ぎ取り、塗り分けることで、新たな空間のつながりを生み出す改修デザイン。