MODEL PLAN

モデルプラン

食彩の家

外飯スペースで行う”食事”という行為を介して四季の移ろいを感じながら、
日々の暮らしを記憶として紡いでいくというコンセプトで計画しました。
様々な表情を見せる庭、木々の成長と共に家族の絆を育み、暮らしていく家です。
晴れた日はウッドデッキと共に内外一体空間として広く使うことができ、雨の日は反対に狭まることになります。
この”活動領域が天候に左右される”という原始的な理屈を住宅に取り入れることによって、
自然というものをより身近に感じながら暮らしてゆくことができる家になっています。

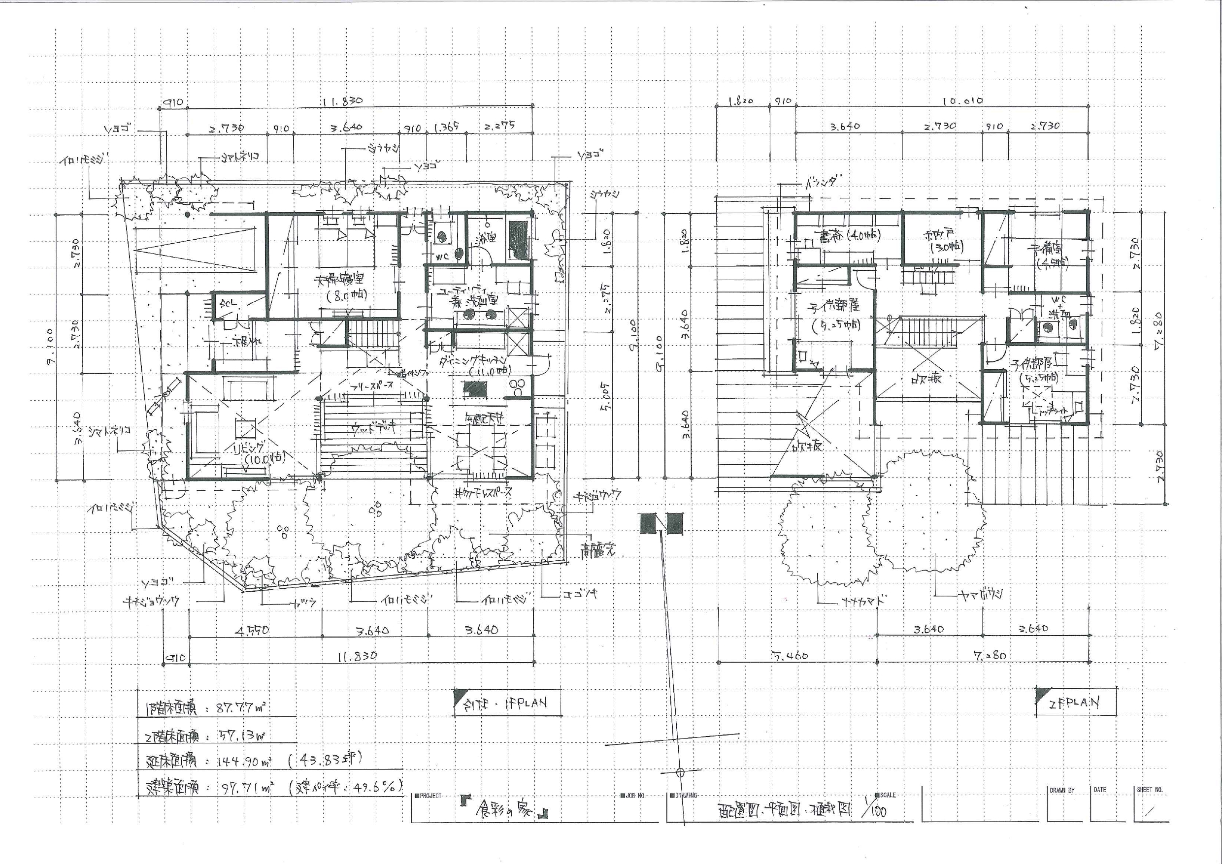
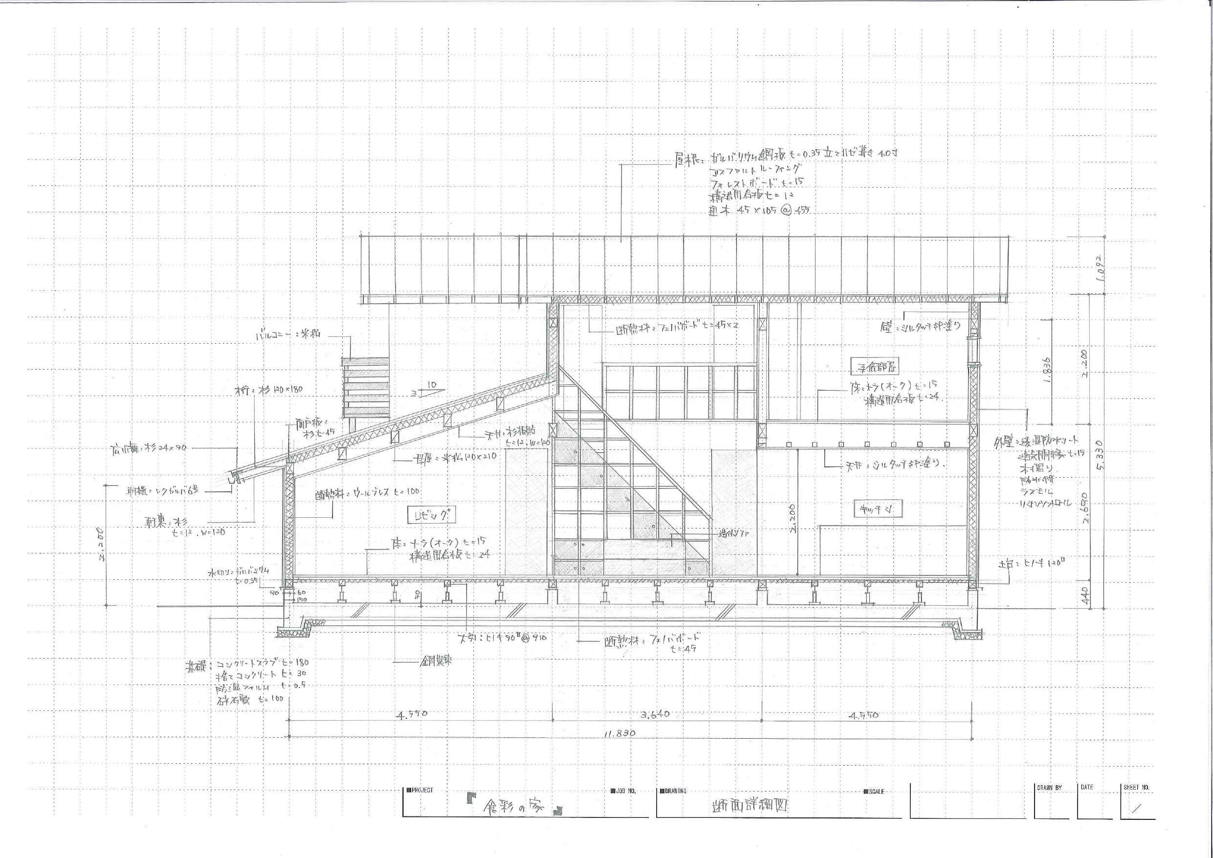
建物用途:一戸建ての住宅
構造:木造
工事種別:新築
敷地面積:197.52㎡
延床面積:144.90㎡