MODEL PLAN

モデルプラン

無の部屋を持つ家

無の部屋を持つ家

本計画地である玉野深山アルバタウン地区は周辺を山林に囲まれており、
近くには深山公園や水生植物園があり、遠方には十禅寺山を望むことができる、緑豊かな自然環境に恵まれています。

「重力から自由になる家」を実現することで、そんな豊かな周辺環境をより体感することのできる建築を目指しました。
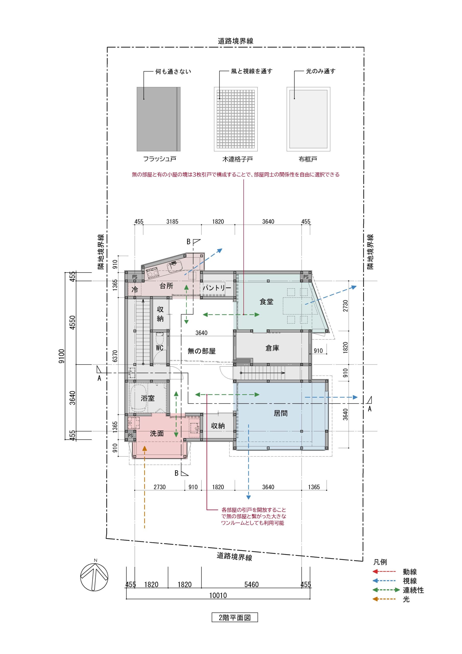
そこで本計画では、「重力」しいては「地球」の関係性から開放される「無の部屋」を構築することを考えました。

息を止めることで初めて空気の存在を認識出来るように、「無の部屋」を介して各部屋へ向かうことで、
より一層「地球」を認識することの出来る場が実現するのではないかと考えています。
「無の部屋」と、よりその場所に特化した「有の小屋」を並置し、それらを行ったり来たりする中で、不思議な浮遊感が生まれることを意図しています。
「重力」から自由になり、「重力」を再認識できる、そんな「無の部屋をもつ家」の提案です。

敷地:   岡山県玉野市
用途:   住宅
階数:   地上2階
構造:   木造

建築面積: 114.24㎡
延床面積: 182.65㎡