MODEL PLAN

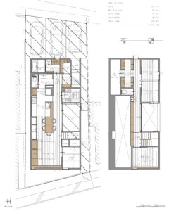
地方鉄道の駅にアクセスしやすい、約47坪の敷地にご家族3人が暮らす
吹抜と中庭を活かした開放感のあるコートハウスをご提案しました。
内部は中庭に面したダイニングキッチンが吹抜により2階と繋がり
建物全体が一体感のある広々とした空間になっています。
隣家が立ち並ぶ50坪以下の敷地であっても、
自然光による明るさと開放感を得られる設計を目指しました。
長期優良住宅認定
耐震等級3
UA値 0.46(等級6)
C 値 0.2
施工:ヨシナ建築