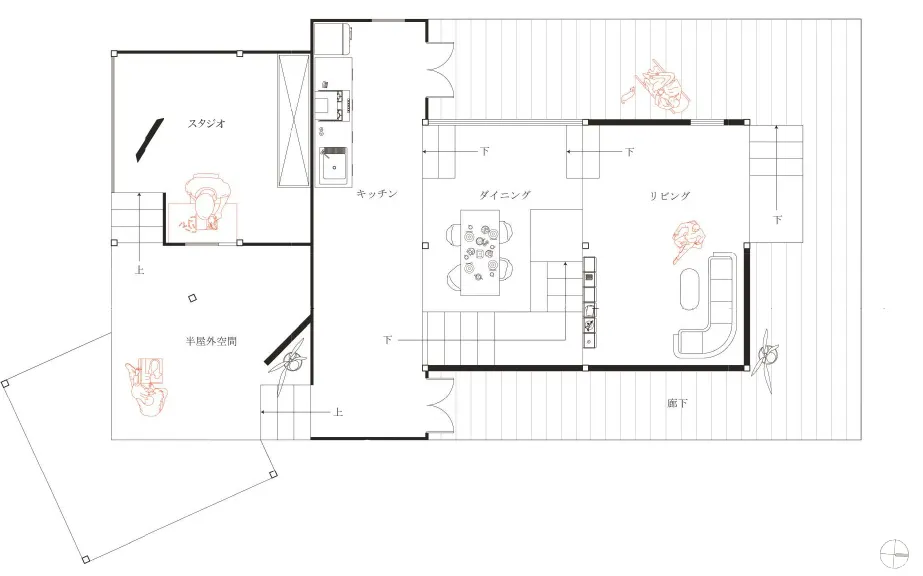
MODEL PLAN

モデルプラン

重力への空間劇

第1回「瀬戸内国際建築デザイン実施コンペ2025」学生部門 審査員特別賞2

重力への空間劇
-傾斜・回転・浮遊が紡ぐ、自由な暮らしのかたち-

アーティストのための住まいを考えた。
創作活動と暮らしが、都市のノイズから遠ざかり、解放されるように。

宙に浮かぶボリュームとスラブの高低差が、その意識を少しずつ切り替える。
傾くスラブが、創造も休息も受け止める。

この浮かぶ家は、アーティストの暮らしに寄り添いながら、そっと創造を引き出してくれる。