MODEL PLAN
第1回「瀬戸内国際建築デザイン実施コンペ2025」フリーランス部門 審査員特別賞2

日本の伝統的な木造建築が培ってきた空間的特徴である一「内部と外部のつながり」「自然との調和」「室・間の連結」「平面的な広がり」一を、
立体的に展開させることで、「重力から自由になる住宅」を提案します。
この住宅は、日本古来の「間」の概念を、現代的に再解釈し、
「内(ウチ)の間」と「中(ナカ)の間」と「外の間」の三つの間により、瀬戸内の自然環境と調和しつつ、時空間的な広がりを内包した居住空間を創造します。
木造モジュールとJ-耐震開口フレームを採用することで、
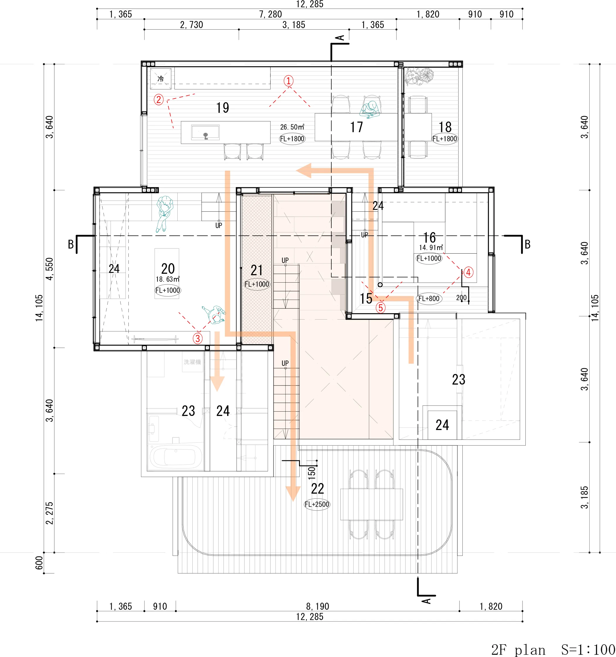
平面は伝統的な「室・間」を連結させて、生活サイクルに寄り添った回遊性のある「内(ウチ)の間」を形成しています。
断面計画は、スキップフロアを形成し、分断されない立体的な繋がりを作り出しています。
移動に伴う上下運動により、空間の広がりを感じます。
雁行した空間の輪郭は、瀬戸内の豊かな環境を取り込んだ「内の間」に奥行を与え、
「外の間」は近隣の住宅や周辺環境と調和した建築としての住宅が建ち現れます。
この住宅での身体·時間·空間の関係性は、グラデーション状に切り替わり、住む人の日常生活に寄り添います。
また、中心に位置する中庭のような空間は「中(ナカ)の間」として様々な関係性の緩衝体となります。
この「間」は、日常動線であり、室と室、プライベートとパブリック、住宅と都市、家族間の視線や関係性を繋ぎとめる住宅の広場となります。
「内の間」と「中の間」と「外の間」が連なり、相互反応することで、
立体的な空間の広がりと四季による移ろいが、住宅のスケールを超えた空間体験を生み出します。
生活スタイルの変化に合わせて「変層しつづける」体験と関係性を創造します。