MODEL PLAN
第1回「瀬戸内国際建築デザイン実施コンペ2025」フリーランス部門 審査員特別賞1

1.民家‐重力から自由な木造形式
民家のような、大きく、ひらかれた家をつくる。
吹き抜けを支える大きな梁と柱。使い勝手のよい田の字プランと土間空間。
ダイナミックでフレキシブルな民家の構法は、重力から解き放たれた木造住宅の未来のかたちかもしれない。
J耐震フレームと軸組工法。伝統と先端技術の融合によって、「古くて新しい」現代の民家を提案する。
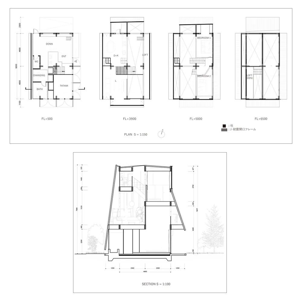
2.田の字×十字柱
軸組工法による細かな柱割に、袖壁状のJ耐震フレームを組み合わせ、十字型の構造柱を構成。
これにより、民家のような大らかなモジュールを持つ空間が生まれる。
田の字に編成されたスキップフロアは、部屋同士をゆるやかにつなぎ、
かつての民家がそうであったように、住人のさまざまな活動と暮らしの変化を受け止める。
3.敷地条件/十字型の勾配屋根とプライバシー
ハットのようにふわりと十字型に展開する勾配屋根はプライバシーと開放性を両立する。
四方の隣地からの視線を遮りながら、斜め方向のスリット状の開口によって、採光と眺望を確保する。
4.明るい土間
半透明の開戸で囲まれた土間空間は、光を取り込みつつ視線をやわらかく遮る。
開け放つと最大4.3mの大開口となり、外と内を自在につなげる。
簡易な水回りと机を備え、オフィスや作業場、ジム、ヨガなど、アクティビティの場として多用途に利用できる。
5.構造
長辺4.6m × 短辺2.3mの構造グリッド。
その交点に105角柱とJ耐震フレームによる袖壁を配置することで、RC造に匹敵するスパンを持つ、開放的な木造架構を実現する。