MODEL PLAN
第1回「瀬戸内国際建築デザイン実施コンペ2025」学生部門 審査員特別賞3

地震の多い日本で、長い間垂直面として地震に耐えてきた木造軸組構造の壁。
その縛りがなくなり、重力から自由になったとき、それらはどのようなふるまいをするだろうか。
それは重力から解放され、自由に動き出すかもしれない。
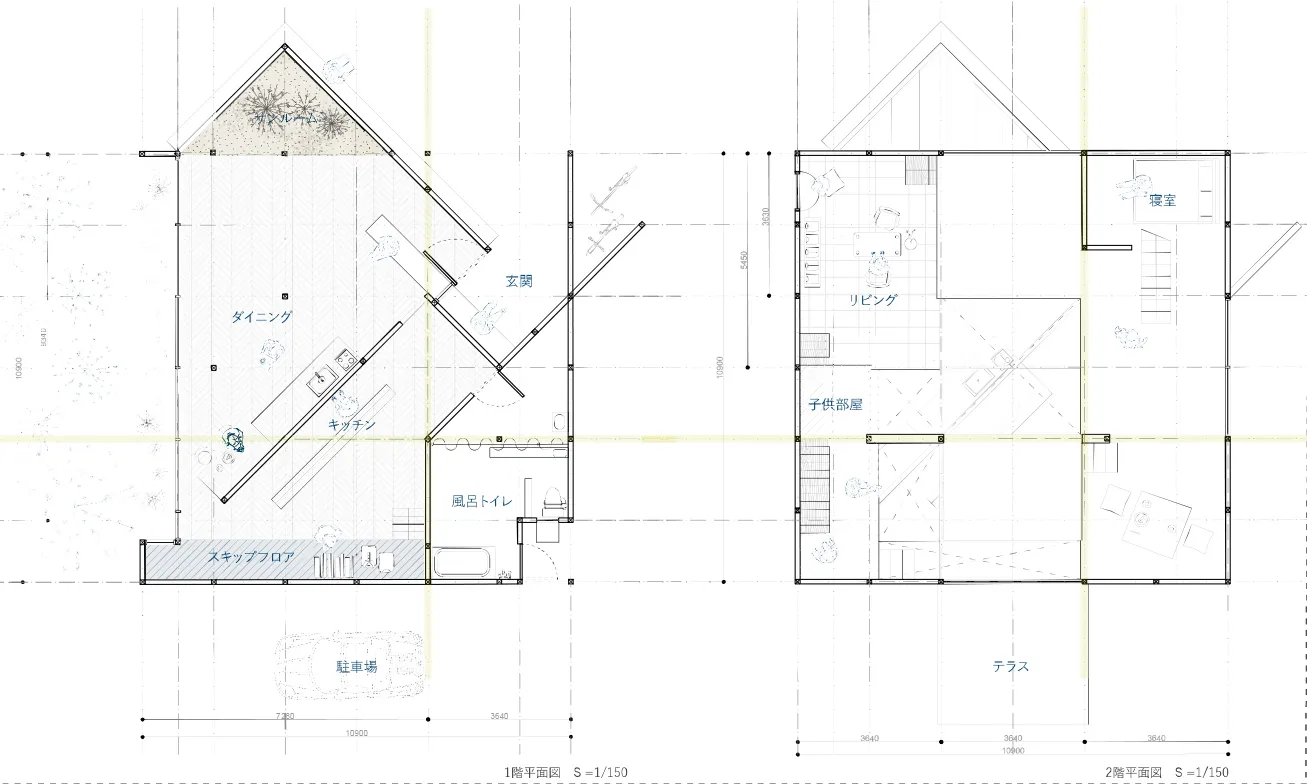
田の字型の家をプロトタイプとして、壁の質量を変えずに実践してみよう。
重力を担ってきた壁が自由になると、新しい可能性が見えてくるだろう。
壁が折れ、曲がり、新たな領域を生み出す。
その空間に人びとの営みが生まれ、壁に新たな機能が付与される。
新しい壁を加えることなく出来上がった場所は、今までの空間が持っていた潜在的な能力を開放し、不思議な浮遊感が生まれる。
すべての木造の壁たちよ、さあ今こそ開放の時だ。